
Rannalle toteutettu moderni kohde rantasaunoineen
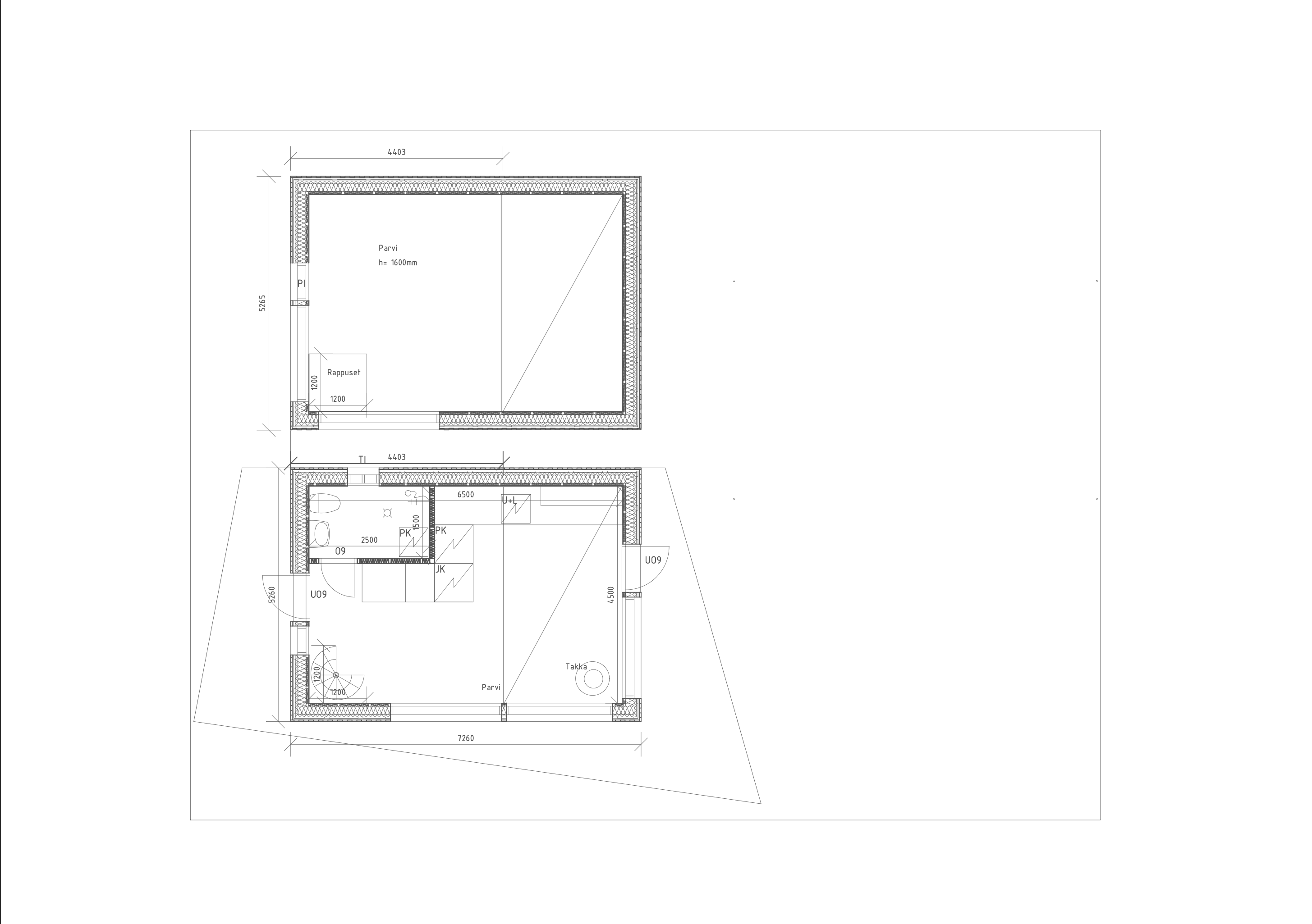
Kulmakallio on rannalle toteutettu moderni kohde rantasaunoineen vuonna 2024. Projekti yhdistää kauniisti luonnon läheisyyden ja modernin arkkitehtuurin. Rakennus on suunniteltu hyödyntämään rantatontin ainutlaatuiset mahdollisuudet ja tarjoamaan asukkaille rauhallisen pakopaikan luonnon keskellä. Projektin erikoispiirteet: • Upeat merinäkymät ja rantayhteys • Integroitu rantasauna • Kestävät, luonnonmukaiset materiaalit • Energiatehokas rakennustapa • Harmoninen integrointi ympäristöön Kulmakallio edustaa ajatonta suomalaista kesämökkiperinnettä modernilla otteella.